Makléř: Ing. Simper Jan
Telefon: 725 293 ...
E-mail: jan.sim ...
Zobrazit celý kontaktTelefon: 725 293 729
E-mail: jan.simper@century21.cz
Nemovitost nabízí
CENTURY 21 Real Tip
Poděbradova 909/41, 702 00 Ostrava
www.century21.cz/kancelar-real-tip
Zobrazit kontakt na RK
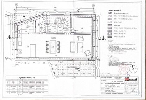
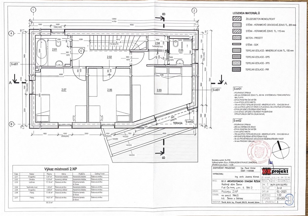
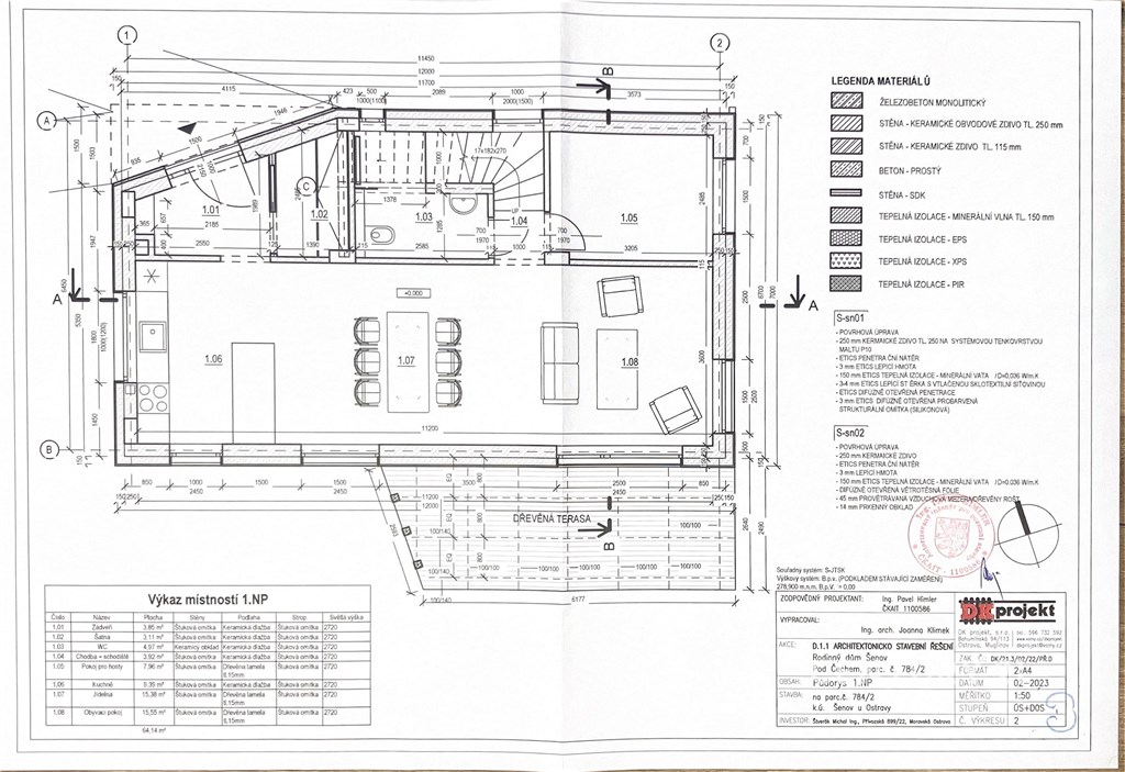
Představte si místo, kde se sen o vlastním bydlení stává skutečností bez obvyklého víceletého maratonu na úřadech. V žádané lokalitě Šenov u Ostravy, v klidné ulici Pod Čechem , vám nabízíme slunný pozemek o ideální výměře 840 m2 , který je po technické i legislativní stránce připraven k zahájení výstavby. Tento pozemek představuje kompletní balíček pro budoucího majitele, který si cení svého času a klidu. Největší přidanou hodnotou této nabídky je, že k pozemku je již vydáno platné stavební povolení (společný územní souhlas a souhlas s provedením ohlášeného stavebního záměru) na moderní dvoupodlažní rodinný dům. Projekt počítá s domem o užitné ploše 142 m2 (balkón a terasa 18 m2) , který je chytře rozdělen na technickou zónu v severní části a velkorysou obytnou zónu orientovanou na jih, aby interiér získal co nejvíce přirozeného světla a byl plynule propojen s dřevěnou terasou a zahradou. Na pozemku se nachází vodovod a splašková kanalizace (přípojky nejsou zbudovány). Na pozemku se nachází hlavní domovní skříň pro elektřinu. Pro hospodaření s dešťovou vodou je v projektu navržena retenční nádrž s akumulací a následný vsak , což odpovídá nejmodernějším ekologickým i legislativním požadavkům. Lokalita Šenova je vyhlášená svou vynikající dostupností do Ostravy i Havířova, přičemž si zachovává charakter klidného bydlení s výhledem na Beskydy a na Lysou Horu. Pozemek je mírně vyspádovaný a orientovaný tak, aby budoucí dům nebyl stíněn okolní zástavbou a poskytoval maximální soukromí. Pokud hledáte místo, kde můžete povolat stavební firmu prakticky ihned po podpisu kupní smlouvy, tato nabídka v Šenově je pro vás tou správnou volbou. Zaujala Vás tato nabídka. Ozvěte se mi a domluvíme si prohlídku, rád vám toto místo a jeho možnosti ukážu osobně.
Pozemek, bydlení, prodej, Šenov, Ostrava-město
PARCELA URČENÁ PRO VÝSTAVBU RODINNÉHO DOMU -> mimořádná nabídka volného pozemku v rámci zástavby -> do samostatného vlastnictví bez spoluvlastníků -…
Prodej pozemku k bydlení, 2090 m2, Šenov
Nabízím k prodeji pozemek parc. č. 6048/1 v katastrálním území Šenov u Ostravy o výměře 2 090 m2. Pozemek je veden v katastru jako zahrada a dle…